Главная
Проекты
Дома и квартиры
Общественные помещения
Офисы
Фасады и территории
Типы проектов
Типы проектов
Этапы работы с дизайнером
Цена за проект
Стили интерьера
Классический интерьер
Современный интерьер
Этнический интерьер
Помещения
Детские
Кухни
Спальни
Гостевые и Гостиные
Кабинет
Ванные и Сан/Узлы
Обо мне
Обо мне
Контакты
Отзывы
Главная
Проекты
Дома и квартиры
Общественные помещения
Офисы
Фасады и территории
Типы проектов
Типы проектов
Этапы работы с дизайнером
Цена за проект
Стили интерьера
Классический интерьер
Современный интерьер
Этнический интерьер
Помещения
Детские
Кухни
Спальни
Гостевые и Гостиные
Кабинет
Ванные и Сан/Узлы
Обо мне
Обо мне
Контакты
Отзывы
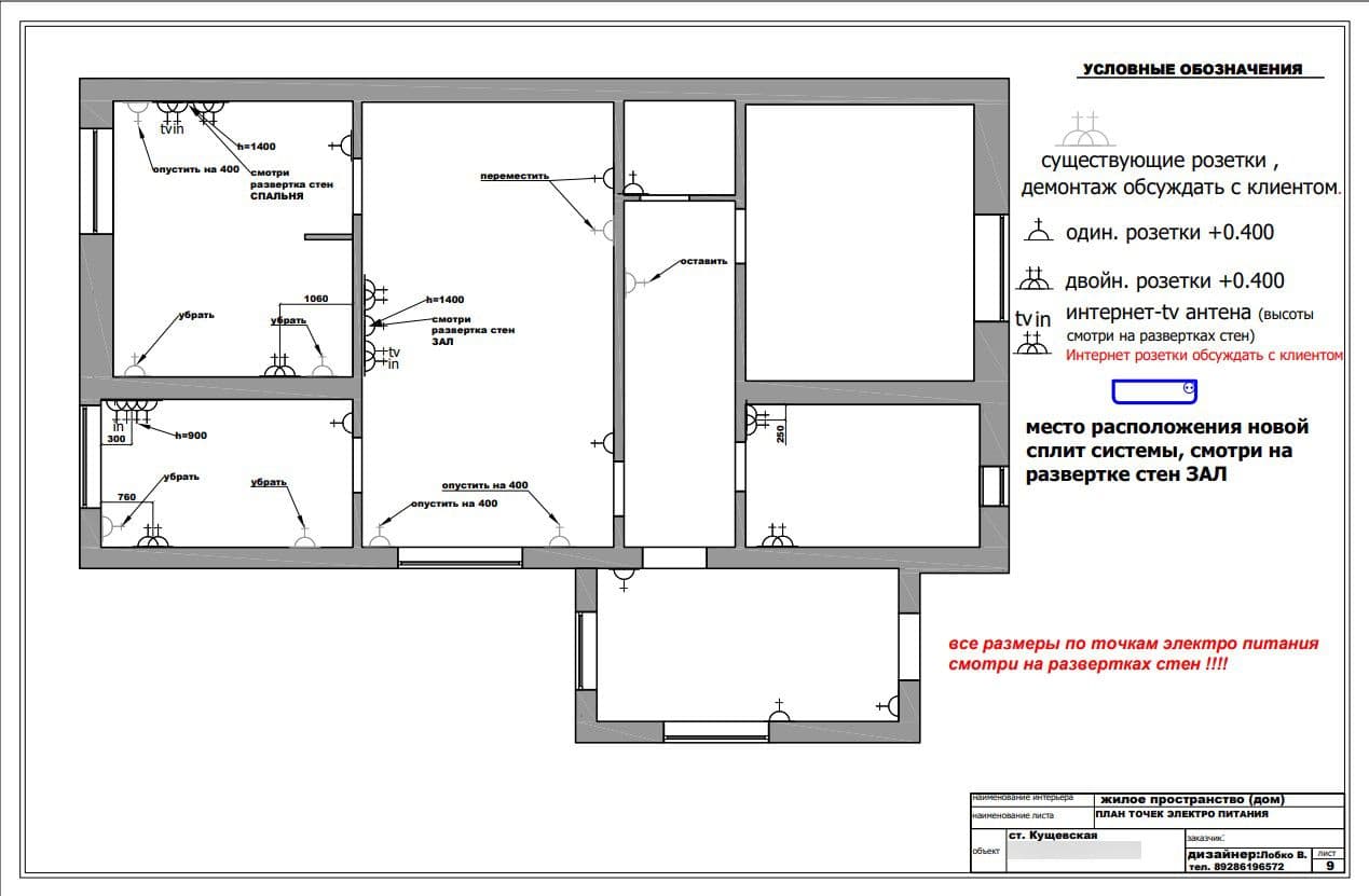
ПРОЕКТ 9
Частный дом 80 кв.м., Краснодарский край, ст. Кущевская . Проект сделан в 2021 г.
Зал
Спальня
Кабинет
Прихожая
Сан/Узел
Чертежи
Фото реализованного интерьера
Проект реализован в 2023 г.
Конструктор сайтов от